一、用途:
GSHZ 型回转式格栅除污机(又称“固液分离器” ),广泛应用于城市污水处理厂、自来水厂、泵站、电厂进水口,自动拦截并清除水中的漂浮物,保证下道工序的正常运行;也可用作纺织、印染、屠宰、制革、造纸、制糖、酿酒、食品加工中的固液分离。
二、型号表示方式:
三、主要特点:
结构紧凑、电气控制简单,便于实现自动化;耐蚀性优、能耗小、噪音低;除污动作连续、排污干净、分离效率高。
四、工作原理:
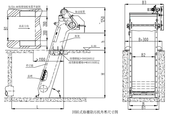
该设备是由 ABS 工程塑料、尼龙或不锈钢制成的特殊形耙齿,按一定的排列次序装在耙齿轴上形成封闭式耙齿链,其下部装在进水渠水中。当传动系统带动链轮作匀速定向旋转时,整个耙齿链便自上而下运动,并携带固体杂物从液体中分离出来,流体通过耙齿间隙流出去,整个工作状态连续进行。
由于耙齿的特殊结构形状,使耙齿链携带杂物到达上端反向运动时,前后耙间产生相对自清运动,促使杂物依靠重力脱落,设备后面可设置旋转的清污刷,进一步除净滞留在耙齿污物,如需要定货时需注明。
五、技术参数:
按设备宽 W0 格栅机分:单联机 GSHZ300-1400 型、并联机 GSHZ1400-3000 型。选型由过水量、提升高度而定,同时根据所分离杂物的大小选配不同格栅。
六、选型必备参数说明:
必备:渠道的宽度(或者设备的宽度)B、渠道的深度 H、格栅栅隙 b、耙齿材质要求、机架材质要求。无特殊说明的按常规:安装角度 75°,出渣高度 600MM,功率标配,板材厚度标配。
七、GSHZ 型回转式格栅除污机结构简图:
八、过水流量表:
