GSHP 型回转耙式格栅除污机用于城市污水处理厂、自来水厂、雨水泵站等进水渠(井),自动拦截并清除水中的漂浮物,保证下道工序的正常运行。
二、型号表示方式:
三、主要特点:
1、由于回转耙式格栅除污机的栅条置于齿耙牵引链的中间位置(其它机械格栅置于牵引链之下),改变
了齿耙在清捞过程中的运动方向(与其它格栅相反),避免把硬物带入底部将齿耙及牵引链卡死;
2、在减速机输出轴端的链轮盘上安装了过载安全保护装置,以避免因意外原因过载面损坏设备;
3、由于格栅机回转链配带多个除污齿耙,使得除污效率高,清污彻底;
4、结构紧凑、电气控制简单,便于实现自动化。
四、构造及工作原理:
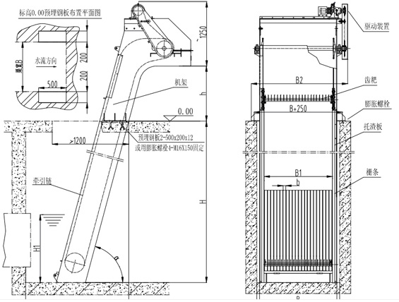
GSHP 型回转耙式格栅除污机主要由驱动装置、机架、主轴、栅条、托渣板、齿耙及牵引链组成。在电机驱动下,通过减速机减速后,带动链轮与链条运动,固定在回转链条上除污齿耙链条在栅后运动到底部,经过导轮后翻转到栅前迎水面的位置,继续运动插入固定栅条的间隙中上行,把栅前拦截的污物提升带出水面, 并随着链条的运动到出渣口处自动翻转,污物自卸到格栅后的输送机或渣桶中, 完成除污过程,液体则通过栅条的栅隙流过,整个工作状态连续循环进行。
五、主要技术参数及安装尺寸:
六、选型必备参数说明:
渠道的宽度 B、渠道的深度 H、最高水位 H1、栅条间距 b、材质要求。其他没有要求的标配!
七、回转耙式格栅除污机外形图:
八、过水流量表:
九、说明:
如需配电器控制常规为手动控制。电控可带 PLC 接口;可与其它设备联动;可进行时间控制;可进行液位控制,在停机时段如格栅意外堵塞,使栅前水位达设定的事故高水位时,除污机可立即开动而不受周期的限制;可进行液位差控制,在停机时段如格栅意外堵塞,使栅前后水位差达设定的事故高水位时,除污机可立即开动。用户需要时应在定货时注明。
